Rif: 39
GENOVA
GENOVA - zona Castelletto
Genova – Via Pertinace, zona Castelletto
In stabile ordinato, senza ascensore ma con possibilità di allaccio, proponiamo appartamento al secondo piano.
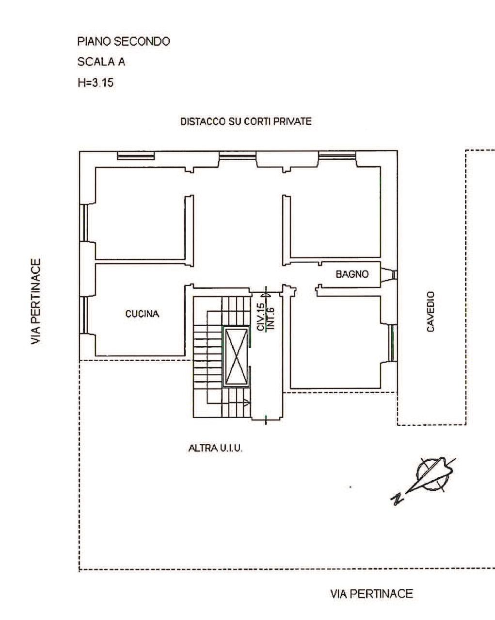
L'immobile si compone di ingresso su soggiorno, cucina e camera matrimoniale sul lato sinistro, due ulteriori camere e bagno sulla destra.
L'appartamento necessita di lavori di ristrutturazione.
La vicinanza al polo universitario lo rende interessante non solo per famiglie ma anche come investimento per locazione a studenti.
Contenute spese di amministrazione. Riscaldamento autonomo.
In stabile ordinato, senza ascensore ma con possibilità di allaccio, proponiamo appartamento al secondo piano.
L'immobile si compone di ingresso su soggiorno, cucina e camera matrimoniale sul lato sinistro, due ulteriori camere e bagno sulla destra.
L'appartamento necessita di lavori di ristrutturazione.
La vicinanza al polo universitario lo rende interessante non solo per famiglie ma anche come investimento per locazione a studenti.
Contenute spese di amministrazione. Riscaldamento autonomo.
Consistenze
| Descrizione | Superficie | Sup. comm. |
|---|---|---|
| Principali | ||
| Immobile - 2° piano | 85 Mq | 85 Mqc |
| Totale | 85 Mqc | |

